The proposed Lake Flower Inn is a $15 million 90-room luxury hotel that will replace three long-operating motels squeezed together on the shores of Lake Flower around Pontiac Bay is currently being evaluated by the Village of Saranac Lake and the Adirondack Park Agency (APA). The project will buy and raze three existing motels and consolidate the 3-acre site for a new 80,000-square foot convention center with rooms, meeting rooms, restaurants and bar. In place of three motels built perpendicular to the lake, the Lake Flower Inn will build one 300-foot-long building that faces onto Lake Flower Ave.
The developers state that they will retain almost all of the mature trees on the property; move the building further from the lake than current buildings; create more green space between the inn and the lake than currently exists; improve stormwater management; and operate a year-round facility that will both draw people to the community and provide year-round jobs. The Inn will also enable people to reach it by boat and dock at its restaurant for dinner.
The project marks a major investment in the Saranac Lake community.
The Lake Flower Inn developers argue that their architectural design incorporates design features from the heyday of great hotels on the Saranac Lake chain of lakes.
The developer proposes to build the driveway and all patios and walkways with pervious pavement to enable the capture and infiltration of stormwater. Currently, the Department of Transportation (DOT) straight-pipes stormwater into Lake Flower through drains beneath the existing motels. The developers state they will fix all existing stormwater problems, but still face major challenges for dealing with stormwater on such a small lakeshore lot.
Like the proposed Lake George Marriott, the Lake Flower Inn project has prompted concerns about its changes to community character. The Adirondack Daily Enterprise has featured pieces where people argue that a four-story building over 300 feet in length is out of scale with the area. One commenter said that the Inn’s design is similar to the great wall of Dannemora Prison that towers over Main Street in the Village of Dannemora. You can read other letters of concern in The Enterprise here, here, and here. Saranac Lake Village Mayor Clyde Rabideau penned a supportive piece here.
In addition to walling off the lake with a project too big for the site, the other issue that has raised hackles in Saranac Lake concerns parking. The developer proposes to raze an existing building and build parking lots north of Lake Flower Avenue. This means that pedestrians will be crossing one of the busiest intersections on Lake Flower Ave.

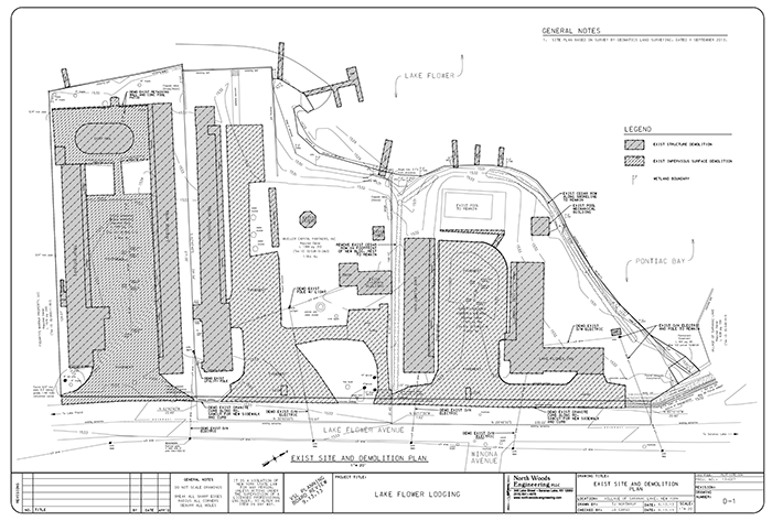
Overview of plans for proposed Lake Flower Inn on the shore of Lake Flower in the Village of Saranac Lake. The gray pavement areas will be porous pavement.

Overview of three existing motels on the shore of Lake Flower in the Village of Saranac Lake. These three motels will be razed and the lands consolidated into a 3-acre tract for the new 80,000-square foot Lake Flower Inn.

This plan map shows locations for off-site parking lots associated with the proposed Lake Flower Inn.
The Lake Flower Inn will also have to contend with issues around new development in a designated flood zone. See a report here about these issues with the Federal Emergency Management Association (FEMA).
The Lake Flower resort was also awarded a $2 million grant by the state. One has to wonder about the impact on the regulators at the APA of a grant from the state’s Economic Development Council, which is heavily controlled by Governor Cuomo. In light of the Governor’s influence over the APA’s recent classification of the former Finch lands, does his approval of the Lake Flower Inn make the project in its current design a foregone conclusion? Will the APA subvert its regulations and limit the scope of its review in order to, as critics have argued, shoehorn a size 10 project into a size 6 site?
Below, are three pictures of the current site from Pontiac Bay in Lake Flower.
The biggest concern raised in Saranac Lake is about the Lake Flower waterfront. Here, an alternative to commercial use has long been considered. The idea that this site should be transformed to a public park has been a part of Saranac Lake public life for more than 100 years. A park along the Lake Flower waterfront has been an article of faith of the Village Improvement Society of Saranac Lake, which turned 100 years old in 2010.
In 1908, the Olmstead Brothers, the firm of Frederick Law Olmstead, architect of Prospect Park and Central Park in New York City, among many others, made a study of Saranac Lake. They recognized the immense public values of the Lake Flower waterfront as a community asset. A member of the Olmstead team wrote more than 100 years ago: “I was struck almost immediately with the potential value of Lake Flower and its immediate surroundings as public property.”
Imagine a public park along the Saranac Lake waterfront for nearly three-quarters of a mile, from the band shell under the pines at the Main Street intersection all the way to the ice cream shop. Linked by an attractive and accessible walkway, it would be heavily used and redefine and dominate the community aesthetic of Saranac Lake.
A public waterfront, like the one in Lake George, provides free and easy access to the casual visitor and local residents. Moreover, by reducing the commercial strip that so dominates the waterfront, it would be a beautiful declaration of community character and community public values. To many observers, there is a compelling, rival vision that is worthy of millions of dollars in public investment, which would provide long-term community benefits.
Village of Saranac Lake Mayor Rabideau makes arguments against the viability of a park:
“The notion expressed by some that the three existing motels should be bought, knocked down and grassed over is simply not realistic. The village cannot afford the $2 million to buy the property, nor the $500,000 to turn it into a park, nor could it afford to lose the current $56,000 per year in property taxes from those properties. Everyone is entitled to express their opinion, even our friends who live outside the village, but we must consider the critical fact that what happens with this property will directly affect the pocketbooks and wallets of Saranac Lake taxpayers for years to come.”
The Village of Saranac Lake Board and Planning Board are both involved in the review of this project. The Village of Saranac Lake manages one of the best building code and zoning programs in the Adirondacks. The APA is in the process of gathering information on the Lake Flower Inn and has stated it won’t be able to evaluate wetlands in Pontiac Bay until June. More information will be available to the public to further evaluate this project in the months ahead based on the Village and APA reviews.
PROTECT will continue to monitor this project.





